欢迎进入山东汇英重型机械有限公司官方网站!


PPCS气箱脉冲袋除尘器

技术简介
PPCS系列除尘器脉冲(PulsePlenum)除尘技术发展而来,这种除尘器集分室反吹和脉冲喷吹等诸类除尘器的优点,具有清灰能力强、除尘效率高、排放浓度低等特点,特别适合处理粉尘浓度高(高达1000g/m3)的废气。
工作原理
PPCS气箱脉冲袋除尘器采用下进气分室结构。含尘烟气由进风口进入灰斗;部分较大的尘粒由于惯性碰撞、自然沉降等作用直接落入灰斗,其它尘料随气流上升进入各个袋室。经滤袋过滤后,尘粒被阻留在滤袋外侧,净化后的气体由滤袋内部进入箱体,再通过提升阀、出风口排入大气。灰斗中的粉尘定时或连续由螺旋输送机及分隔轮卸灰卸出。
随着过滤过程的不断进行,滤袋外侧所附积的粉尘不断增加,从而导致袋除尘器本身的阻力逐渐升高。当阻力达到预先设定值时,清灰控制器发出信号,首先令一个袋室的提升阀关闭以切断该室的过滤气流,然后打开电磁脉冲阀,以极短的时间(0.1~0.2秒)向箱内喷入0.5~0.7Pa的压缩空气。压缩空气在箱内高速膨胀,使滤袋产生高频振动变形,再加上逆气流的作用,使滤袋外侧所附尘饼变形脱落。在充分考虑了粉尘的沉降时间(保证所脱落的粉尘能够有效落入灰斗)后,提升阀打开,此袋室再次进入过滤状态,而下一袋室则进入清灰状态,如此一个周期。PPCS气箱脉冲袋除尘器是由多个独立的室组成的,清灰时各室按顺序分别进行,互不干扰,实现长期连续运行。
上述清灰过程均由清灰控制器(PLCfw)进行自动控制,分为定时式和定阻式两种,可根据用户的要求决定采用哪一种。
基本结构
PPCS系列袋除尘器的主体结构由箱体、袋室、灰斗、进出风口四大部分组成。并配有基础支柱、爬梯、栏杆、检修门、压缩空气气路系统、清灰控制系统、卸灰系统等等,并可根据用户要求选配先进的设备运行监测系统和卸灰输送系统。

购买热线  0536-3470009 18106365666

典型案例

 

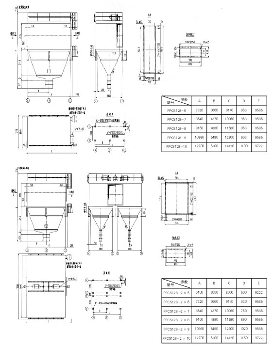
技术参数




在线提交需求反馈

您可以填写下面的表格,把您的联系方式和产品需求提交给我们,我们将尽快与您联系解决,谢谢!为了能及时和您取得联系,请您务必完整填写您的联系方式和需求信息。

联系我们

公司地址: 山东省临朐县临九路31号

销售一部: 0536-3470009

销售二部: 0536-3372555

传  真: 0536-3475555

联 系人: 白一凡

手  机: 18106365666

网  址: www.huiyingjx.com

邮  箱: huiyingzhongji@163.com

邮  编: 262601

您也可以在线咨询旺旺客服

点击这里给我发消息
您可能对以下信息感兴趣?

生产现场 | 发货现场 | 使用现场 |

版权所有© 山东汇英重型机械有限公司